特 点
• 扭矩: 10Nm、15Nm、30Nm、40Nm、
• 额定电压: AC/DC 24V和AC 230V
• 控制方式: 2点、3点开关型
订货代码
S6061NS-10/15技术参数

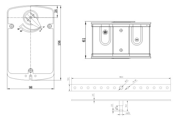
S6061NS-10/15外形及安装尺寸 单位(mm)

S6061NS-30/40技术参数

S6061NS-30/40外形及安装尺寸 单位(mm)

S6061NS系列接线说明


• 扭矩: 10Nm、15Nm、30Nm、40Nm、
• 额定电压: AC/DC 24V和AC 230V
• 控制方式: 2点、3点开关型






